
Predaj obchodného priestoru-kaviarne 65m2, Ba-Staré Mesto
Predaj obchodného priestoru-kaviarne 65m2, Ba-Staré Mesto

Ulica: | Balkánska |
---|---|
Obec: | Bratislava-Rusovce |
Okres: | Bratislava V |
Kraj: | Bratislavský kraj |
Druh: | Priestory |
Typ: | Predaj |
Typ objektu: | Kancelárske priestory |
Iné: |
FinReal go ponúka na predaj Kancelárske, ubytovacie alebo obchodné priestory na Balkánskej ulici, ktorý má dve podlažia. Na každom podlaží je samostatná kuchyňa spojená s obývačkou a samostatná kúpeľňa s vaňou a oddeleným WC.
Skvelá investičná príležitosť na využitie domu ako kliniku, ambulanciu, kacelárske alebo obchodné priestory, hotel/ubytovacie zariadenie.
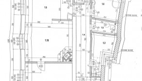
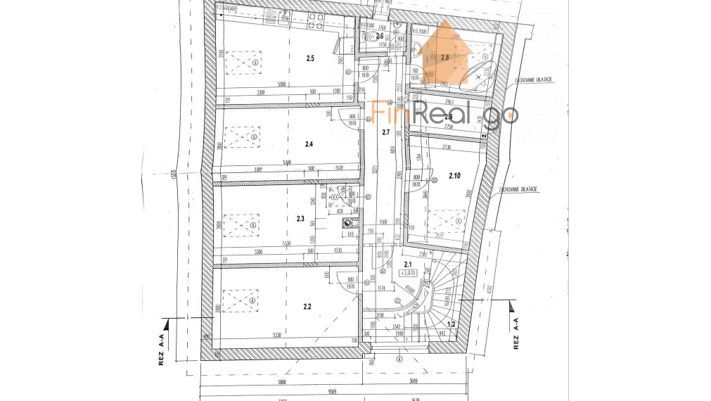
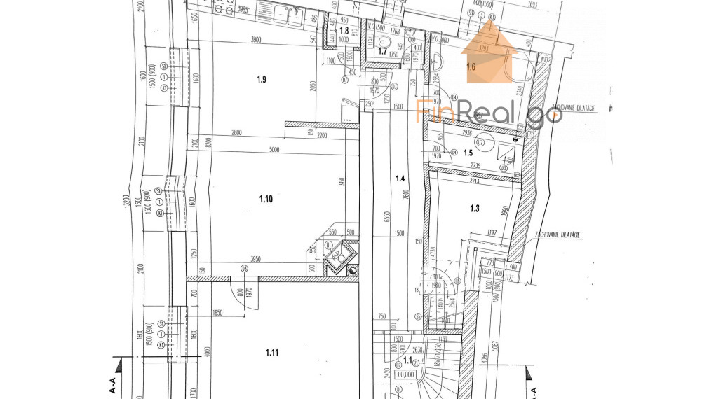
Dom má celkovo 15 miestností (viď. pôdorysy) s úžitkovou plochou 208 m2, ku ktorému prislúcha elektrifikovaná garáž o výmere 34 m2 s montážnou jamou, tiež upravená a starostlivo spravovaná záhrada s ovocnými stromami, okrasnou zeleňou a automatickou závlahou. Súčasťou záhrady je tiež terasa osadená zámkovou dlažbou. Záhrada s terasou majú spolu výmeru 469 m2.
Garáž s prístupným podkrovím sa dá využiť aj ako odkladací priestor, alebo dielňa. Terasa, ktorá je spojená so záhradou, je ideálnym priestorom na grilovanie, či letné posedenie s priateľmi. Na terase je elektrická prípojka a vodovod.
Zastavaná plocha domu je 123 m2, celková rozloha 638 m2. V bezprostrednom susedstve domu sa nachádza ešte jeden rodinný dom. Oba domy zdieľajú časť spoločného pozemku, avšak garáž, záhrada i terasa sú výlučnou súčasťou predávanej nehnuteľnosti.
Na spoločný pozemok je prístup cez automatickú bránu a okrem miesta v garáži je priestor na parkovanie ďaľších dvoch áut.
Dom prešiel kompletnou rekonštrukciou, sú vymenené všetky rozvody elektriky a vody. Nehnuteľnosť je vybavená novým nábytkom, dvoma kuchyňami s elektrospotrebičmi (vrátane napr. umývačky riadu), ako aj klimatizačnými jednotkami Samsung. Vykurovanie a ohrievanie vody je zabezpečené novým kotlom so zásobníkom zn. Geminox. Fasáda domu je zateplená, k udržiavaniu príjemnej klímy v dome prispievajú tiež vymenené plastové okná.
Kúpeľna na prízemí je vybavená hydromasážnou vaňou. Konektivitu domu aktuálne zabezpečuje ADSL linka od spoločnosti Telekom, je však aj možnosť pripojenia na optický internet, ktorého prípojka je k dispozícii pred nehnuteľnosťou.
LOKALITA:
Kúpou tohto domu v Rusovciach získavate nielen priestor na bývanie, ale aj výnimočné a bezpečné prostredie pre život. Spojenie plnej občianskej vybavenosti, vidieckeho prostredia a blízkosti prírody je unikátne aj v rámci Bratislavy.
Prestížna adresa v pamiatkovej zóne mestskej časti Bratislava – Rusovce, bývanie hneď vedľa prírodného parku (CHKO Dunajské Luhy), neobmedzené športové vyžitie v tesnej blízkosti bývania (beh v lese, MTB cyklistika, fitness centrum, futbalové ihrisko, bowling, tenis a pod.) a kompletná občianska vybavenosť s výbornou dostupnosťou do centra mesta po obchvate D4, prípadne mestskou hromadnou dopravou. V pešej dostupnosti je Rusovský zámocký park a Zichyho kaštieľ. V blízkosti sa nachádza aj Rusovské jazero, ideálne na plávanie, hrádza pre bežcov, cyklistov a korčuliarov. Rusovce ležia priamo na cyklistickej trase Eurovelo 6 - Atlantik – Čierne more. Oblasť ponúka bohaté možnosti výletov pre celú rodinu.
CENA:
CENA DOHODOU!
Bezplatne zabezpečíme aj najvýhodnejšie hypotekárne financovanie.
Ak vás táto nehnuteľnosť zaujala, dohodnite si obhliadku čo najskôr!
Alex Maksimčuk
+421 903 717 975
alex@frgo.sk
Promptnosť, profesionalita, korektnosť, spoľahlivosť a zameranie na cieľ je dôvod, prečo so mnou klienti majú vždy náskok .
Ako finančný a realitný poradca s dlhoročnými skúsenosťami v jednej osobe zabezpečujem pre klientov - Predaj, Kúpu, Prenájom Nehnuteľností ako aj Financovanie v bankách.
Ovládanie viacerých cudzích jazykov umožňuje rýchlejšiu realizáciu a dopracovanie sa k vašim požiadavkám využívajúc viaceré dostupné zdroje.
Realitný a finančný špecialista
Promptnosť, profesionalita, korektnosť, spolahlivosť a zameranie na cieľ je dôvod, prečo so mnou klienti majú vždy náskok.
Ako finančný a realitný poradca s dlhoročnými skusenosťami v jednej osobe zabezpečujem pre klientov - Predaj, Kúpu, Prenájom nehnuteľností ako aj (do-, re-) Financovanie v bankách.
Ovládanie viacerých cudzích jazykov umozňuje rýchlejšiu realizáciu a dopracovanie sa k vašim požiadavkám využívajúc viaceré dostupne zdroje.
I SPEAK ENGLISH! Говорю по русски!