We use cookies

 

Predaj - 4-izb. rodinný dom v Jablonovom s jedinečným dizajnom a charizmatickou záhradou

City/Town: Jablonové
District: Malacky
County: Bratislavský kraj
Category: Houses
Type: Sale
House type: Family house
475 000 €

Property description

FinReal go ponúka na predaj exkluzívne priestranný 4-izbový rodinný dom so vzdušnou dispozíciou, priestrannou terasou, bazénom s protiprúdom a charizmatickou záhradou. Detailne architektom navrhnutý s dôrazom na ergonómiu a dizajnové stvárnenie a použitím kvalitných laminátov v dekore Tabakový dub v kombinácii s nesmrteľnou bielou. Za domom už nemáte susedov iba pole a výhľad na Karpaty! 
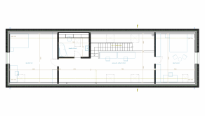
Rodinný dom: 
- zastavaná plocha RD 140m2
- úžitková plocha na 2 nadzemých podlažiach celkovo 200m2
- pozemok 882m2, + 77,66m2 na okolitých pozemkoch, + 179m2 podiel na prístupovej ceste
- parkovanie na vlastnom pozemku pred RD - veľkorysé státie pre 3 autá 
- pozemok prístupný z 2 strán, zo zadnej strany + 1 parkovacie miesto za bránou a za pozemkom je zjazdná poľná cesta prístupná aj klasickým osobným autom
- železobétonová koštrukcia – dýcha a kumuluje teplo, železobetónový strop, zateplený 200mm minerálnou vlnou 
- hliníkové exteriérové žalúzie - skryté kastlíky vo fasáde v celom dome
- hliníkové okná – 3sklo Reyners
- strecha – 0,8 mm hliníkový plech – doživotne bezúdržbové, zateplená 400mm minerálnou vlnou
- sedlová strecha sklon 45 stupňov, v interiéry bez klieštin otvorená do štítu, čím vzniká vysoký strop svetlá výška 3,5metra 
- na prízemí podlahové kúrenie, na poschodí radiátory, v kúpeľniach rebríkové radiátory v kombinácii ústredné kúrenie + elektrina
- dizajnové krbové kachle v obývačke, výkon 7kW – vykúria celý dom a spríjemnia atmosféru zimných dní
Dispozícia:
- vo vstupnej časti domu je technická miestnosť so sprchovým kútom, práčkou a sušičkou 
- priestranná obývačka  s veľkoformátovými oknami s východom na terasu
- 3 priestranné samostatné spálne
- spálňa na prízemí s veľkým šatníkom, vlastnou kúpeľňou s wc a výstupom na terasku s posedením
- kuchynská linka s ostrovom, zabudovaná indukčná varná doska + plynový 2horák, výsuvný digestor, veľký jedálenský stôl pre 8 osôb, veľa úložných priestorov, kombinovaná elektrická rúra kombinovaná s mikrovlnnou rúrou 
- vstavaná kombinovaná chladnička s mrazničkou + vstavaná mraznička
- na poschodí priestranné 2 spálne presvetlené klasickými aj strešnými oknami, veľká kúpeľňa s wc, rohovou vaňou a zabudovanými úložnými priestormi
- 2 kúpeľne s toaletou + pri vstupe samostatné wc – na poschodí s rohovou vaňou a na prízemí so sprchovacím walk-in kútom
- v strede domu sa nachádza galéria s dizajnovým schodiskom presvetlená dvojicou strešných okien na obidvoch stranách – nad galériou elektricky ovládané, s dažďovým senzorom
- galéria je využívaná ako pracovňa – herňa – čitáreň s veľkorysým otvoreným priestorom na realizáciu vašich predstáv
Výhody:
- veľkorysý záhradný domček - skladové priestory, ktoré určite oceníte
- bazén 4,2 x 4,5m, hĺbka 1,3m s filtráciou a protiprúdom 
- studňa na úžitkovú vodu + v dome je dvojitý rozvod vody – splachovanie wc je napojené na studňovú vodu
- pod schodiskom v galérii zabudovaný kvetináč v podlahe
- tienenie na terase
- plynový kotol Junkers
- predpríprava na klimatizáciu
- v obývacej miestnosti audio rozvod
- dekoratívne San Marco omietky v obývačke a chodbe
- krásne upravená záhrada – okrasná s úžitkovými stromami – hrozno, kiwi, hurmikaki, 2 druhy japonskej hrušky- Nashi, 2 hrušky – 1 klasická, 1 stĺpová, mandle, černicový plot, egreše, arónia, josta, jahody – celoročne rodiace, ríbezle, čučoriedky, figy, jabloň, 3 druhy stĺpových jabloní, 2 druhy sliviek, lieskový orech, levandule – malé, stredné  - voňavé a veľké – jedlé, trávniky s minimálnou údržbou
Lokalita:
- obec Jablonové je veľmi obľúbená najmä kvôli výbornej dostupnosti a kompletnej občianskej vybavenosti - škola, škôlka, lekáreň, potraviny, fitko, krásna okolitá príroda, Karpaty,...
- dostupnosť do 15 min. Malacky, 15 min. Bory mall, 30 min. centrum BA

Cena:
Cena nehnuteľnosti je 475.000,- EUR vrátane kompletného odborného realitného, finančného a právneho servisu.

Tento rodinný dom si zamilujete! Uspokojí aj náročných klientov hľadajúcich pokojné bývanie s maximálnym komfortom a dostupnosťou. Určite sa oplatí vidieť!

V prípade záujmu kontaktujte makléra:

Mgr. Petra Šturcel Nemcová RSc.
CEO, finančný a realitný špecialista
Mobil: +421 910 564 716 
E-mail: petra.nemcova@frgo.sk
Mlynské nivy 78C, 821 05 Bratislava

Features

Status:
active
Ownership:
personal
Land area:
882 m2
Ground type:
flatland
Territory:
Intravilan
Usable area:
200 m2
Built-up area:
140 m2
Type:
new Building
Number of rooms:
4
Equipment type:
completely furnished
Terrace:
yes
Pantry:
yes
Store room:
yes
Technical room:
yes
Year of construction:
2020
Year of building approval:
2020
Number of overhead floors:
1
Total area:
200 m2
Orientation:
south
Utilities:
yes
Water:
yes
Electric:
yes
Gas:
yes
Water - On land:
yes
On land - deep well:
yes
Electric - On land:
yes
Gas - On land:
yes
Underfloor heating:
yes
Internet:
yes
Phone:
yes
Status:
active
Ownership:
personal
Land area:
882 m2
Ground type:
flatland
Territory:
Intravilan
Usable area:
200 m2
Built-up area:
140 m2
Type:
new Building
Number of rooms:
4
Equipment type:
completely furnished
Terrace:
yes
Pantry:
yes
Store room:
yes
Technical room:
yes
Year of construction:
2020
Year of building approval:
2020
Number of overhead floors:
1
Total area:
200 m2
Orientation:
south
Utilities:
yes
Water:
yes
Electric:
yes
Gas:
yes
Water - On land:
yes
On land - deep well:
yes
Electric - On land:
yes
Gas - On land:
yes
Underfloor heating:
yes
Internet:
yes
Phone:
yes

Hypotéky

Mortgage Calculator

Show on map

Broker

Mgr. Petra Šturcel Nemcová RSc.

Mgr. Petra Šturcel Nemcová RSc.

CEO, realitný a finančný špecialista

  • Slovensky
  • Česky
  • English
  • sora
  • rusr
  • lrm

Svoju prácu milujem a napĺňa ma! Reality, financie a dizajn interiérov nieje len moja práca, je to moja súčasť, obrovská vášeň a niečo bez čoho si už neviem predstaviť existovať.  
Každý kto ma pozná vie, že klientova spokojnosť je vždy na prvom mieste! Individuálne požiadavky, či situácie sú samozrejmosťou a vždy je potrené zvoliť správnu stratégiu. K predaju nehnuteľností pristupujem vždy ako k vlastným.
Práve preto mi klienti zveria svoju dôveru v tak dôležitom životnom kroku. 
A čo je najdôležitejšie? Všetko ide vždy ľahšie s úsmevom :)

We will be happy to advise you

Similar properties